Presentation
Inkvartering
Historia
Reserverignar
Äkäslompo/Ylläs info
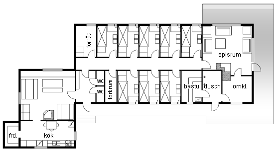
16 bäddplatser, 8st 2 personers rum
elbastu
3 toaletter
2 allrum/spisrum
torkrum
tvättmaskin
diskmaskin
vallningsstuga
Vy från gården
spisrum 1
spisrum 2
rum för 2 personer
Terrass
Kök
Bastu
Kruununmaja Fastighets Ab - Kronoby Fjällstuga | Kesänkijärventie 3 | 95970 Äkäslompolo