Esittely Majoitus Historia Varaukset Äkäslompo/Ylläs info
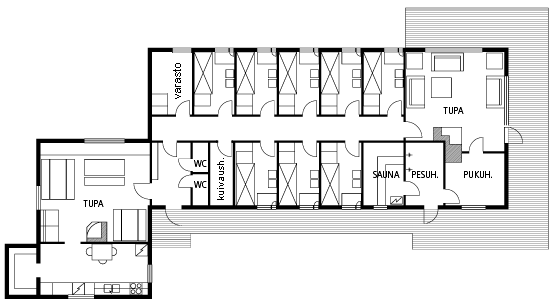
  • 16 vuodepaikkaa, 8 kpl 2 hengen huonetta
  • sähkölämmitteinen sauna
  • 3 wc:tä
  • 2 olohuonetta/tupaa
  • astianpesukone
  • pyykinpesukone
  • kuivaushuone
  • suksienhuoltohuone
  •  
    Kuva pihalta Kuva pihalta Tupa 1 Tupa 2 2 hengen
    huone
     
       
    Terassi   Keittiö Sauna    

     

    Kruununmaja Kiinteistöosakeyhtiö - Kronoby Fjällstuga | Kesänkijärventie 3 | 95970 Äkäslompolo
     
    Takaisin aloitussivulle